2006/10/2
上の写真は家の建て方を決めに行ったときのものです。
2006/7/13
7月に入ってから、熱海方面を探し始めました。
いろんな場所を考えたのですが、別荘から仕事に行く。短時間で自宅と行き来が出来る。
車でも電車でもと選択が出来る。そして一番は犬たちが車で我慢できる時間の距離。
でも数ある別荘地は急傾斜が多くって、動物たちの遊び場には向かない。
そんなこんなで今日はエメラルドタウンを見に行くことになりました。
三箇所の土地を案内していただいて、上の写真のところが235坪東南の角地。
少し駿河湾の方向が傾斜しています。海側のお隣はずーッと下の方。
ここを見て即決めました。桜の大木が三本ある土地です。
何しろ一番気に入った理由は視界が開けていること!
2006/8
さてそれからが大変でした。
銀行さんとのやり取り。自己使用の住宅と違い別荘ですから、扱っているところが少ないし、
あたしは不動産屋会社役員だし。でも銀行さんの担当の方がとてもがんばってくれてお陰でローンを組むことが出来ました。
ありがとう!
9月に入り無事銀行との金消契約も済み、土地の契約も済みました。
この契約が決まるまでのなんともいえない宙ぶらりんの気持は、つらかった!
夢見る気持にはなれないし、望みを託すと壊れそうな感じだし。
そうそれから次が10月2日の写真です。
じわじわ実感が湧いてきてこの紐の位置に建つんだーって。
孫と一緒に土地の隅々にお塩を置いてきました。お清めのつもり。
帰ってから当社で頼まれている売買の土地を地図で探したところ思ったより近くでした。
パサデナタウン、エメラルドタウンで頼まれている所があります。
家のような動物事情でなければいいところです。安いし。
あっもしよければ物件のところをクリックしてみてください。
2006/10/13


地鎮祭を行いました。
11匹の犬たちと行きました。
宮司さんと建築の方たちが来てくださいました。
祝詞をあげて、、、、海の神山の神、、、、みたいなこと言ってたみたい。
途中からVIBが車の中で吠え出したので気がきでなくって、少々気もそぞろ。
2時間近くの車の中の犬たちもほとほと外に出たいよね。
そこで少し近所を散策。一番に近くの神社にお参り。
これからよろしく!この大家族!
この土地には交通の方法が多い。
家からは東名で行く。そこからがあっちこっちから行ける。
そこで帰りは熱海を回り海岸線で!
あたし一人が大喜びでみんなはぐったり。
でも函南から30分かからないくらいなら、新横浜から新幹線乗るよって
電話くれたら別荘出ればちょうどいい。
熱海にお迎えいけます。
2006/10/20
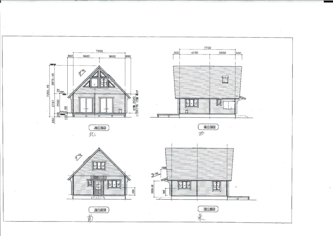
ログハウスで建築することに決まっていました。
それでも考えることが多くって。
というのは、今の家もそうですが、住む前に準備しておくことが、動物の為、快適な生活を始めるために不可欠です。
1、家の周りのフェンス。庭木。
2、車から降ろすときの場所の確保。
3、近隣の人に迷惑をかけない中での動物の自由な空間、日当たり、スポット、危険な場所。
4、デッキとの行き来、ペットドアー。足洗い場。
5、動物のトイレの場所。
6、留守番のときの快適温度の確保。
7、建物の中の動物の居場所。行ってはいけないところの区切りフェンス。
考えるときり無いくらい浮かびます。
ログを切り出す前にお願いしなくてはいけない事がたくさんあるし、
まだまだこれから新しい生活の道具もそろえなければなりません。
これはまだ建築確認の支度をしているそうで、それが通ると基礎ですから、も少し待って、
ログを組出したら考えようかなって思ってます。
動物たちとの快適な生活の準備 楽しいし、これから起こる楽しい時間を考えると心がうきうきします。
少しずつ書いていきますのでお楽しみに!

2006/12/4
11月の終わりごろに始まった基礎がこんな感じです。


2006/12/7
10月13日の地鎮祭に行って以来です。
メールで写真を送っていただき工事の過程をみてはいたのですが、
行って見ると新鮮!
わぁー本当に家が建つんだぁー!

ログを組み立てる足場パイプを組んでます。
基礎のコンクリートの上に角の木(さて呼び名はなんていうのか?)を組んでいます。

これで明日から七日くらいで屋根の辺まで周りの枠のログが組みあがるそうです。
十日くらいで屋根も終わりそこからが時間が掛かるそうです。
この次は16日に行きます。
その頃はどんなに変わっているのでしょう。
楽しみ!


2006/12/16
行って来ました。
今日は棟上だそうです。
夕方までいられなくって途中ですが、感じ湧いてきます。

リビングよりの景色です。




この間から進んでますね。

西側です。

リビングより富士山が正面です。
2006/12/18
今日送られてきた写真です。
棟上を16日のの夕方までかかって終えたそうです。
あたしは建物の中間金を銀行に手続きに行きます。
あれやこれやで新婚生活のように家具から電気製品、寝具類までそろえなくてはいけません。
それも別荘なのでお客様が来るのが当たり前で、お布団は5組ぐらいが必要です。
もしや、普通の生活より大変かも?

こうして準備をしている内に函南町町役場下水道課より合併処理浄化槽設置事業費補助金のお知らせが来たりして、
住民になると177,000円の補助があるということです。
ゆくゆくは函南に永住するつもりなので、水道屋さんに手続きをお願いしました。
こうして準備をしているうちに、横浜の生活にも変化が現れて、春には今と違った生活が展開しているかも知れません。
2007/1/5
あけましておめでとうございます。
大工さんたちの暮れの忙しさの甲斐あってずいぶん出来上がっていました。

窓もついていたし、ドアもついていました。
家らしくなってきたよ。

お庭とフェンスはまだです。
室内はこれからお風呂とかトイレとか流し台が入ります。
外壁の色塗りはこれからです。
楽しみ!
今月末には完成です。
そうそう!一番のお天気で富士山がきれい!

2007/1/21
引渡しです。
建物完成です!
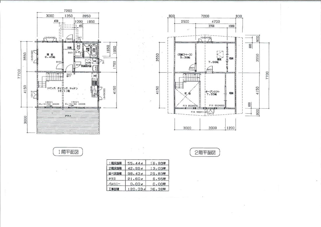
オープンロフトを見上げて。
ロフトのドアーを開けると。
オープンロフトの空間。

デッキ側のガラス張り。

ロフトの来客用の寝室。
2007/1/29
外構工事が始まりました。

左側の小さいハウスは動物たちのトイレハウスです。
猫の日向ぼっこの棚も窓の高さにあります。

お部屋の中はまぁだ散らかっているので、この次ぎいったら披露しますね。
そうそう、あと動物たちの駆けずり回る様子もお届けします。
2007/3/12
家具が入り、カーテンがついて、今やっと植木を植えています。
リビングからの駿河湾の白い波見えます、

夕方のリビング

オープンロフトからの夜景です。
いずれここの窓の前があたしの仕事場の予定です。
夜景を見ながらお仕事orお酒を飲みましょうか。

玄関の前に、オリーブとミモザを植えました。


フェンスもできたのですが、フェンス下からチワワは脱走するので、この次はそこの対処に出かけます。

VIBのハウスを桜の木下に置いてみました。
本人はそこが自分の家とは理解していないようです。
とりあえず、ここでこのコーナーはおしまいです。
新しくこれからの様子を作りますので
少し待っていてください。
あっ待って!!この景色見て!
相模湾です!
あたし初めて気づきました。

ほら!大きくするとこれです。
感激!海と山とを感じていられるって
すごいと思います。
ここでの暮らしこれからです。
また新たなページでお話しますね。



おしゃべりのページ
はじめまして!
富士山が見えます!最高! 
更新履歴は
こちらです
2006/10/21
随分昔から別荘の土地を探していました。
なかなか動物たちと暮らせるのにここって思うところが無くって、でも今回必要に迫られて。
と、言うのは
近隣の人に家の犬たちの吠える声で迷惑をかけてしまい、
一度目は交番のおまわりさん、二度目は警察のおまわりさん、三度目は保健所の人が
我が家にやってきました。
犬が嫌いな人は、一分鳴いてもうるさく感じると言われました。
本当にそうですね。
三回ともアクシデントが発生して、あたしの留守の家の中で11匹の犬たちがパニックになってしまい、
2軒先の人があたしにすぐ帰るよう電話くれて、尚且つ犬たちをなだめてくれて
何十分も吠えてんではないけど、パニックの吠え方は、大変だよね。
そんなこんなで、普通に吠えても近所の方の不機嫌さが目に浮かぶそんな精神状態の自分に疲れてしまいました。
窓が開いてるとき鳥が鳴いたら怒鳴られたし、
あの日からこの夏、窓を開けずに過ごしました。
春から家の周りのフェンスを近所の人に迷惑が掛からないように新しくしたり、
その間にも、裏の庭の方を通行する人から道を通るのが怖いって怒られたりしましたが、
本当その通りなので、、、。背の高いウッドのフェンスがあるんですが、透けて見える。
人が通るとペットドアーから飛び出して吠える一匹、子犬ですが大型犬なので
悪いと思って連れ戻しに出たとき言われました。
きちんとした話方で急ぎませんが改善してくださいって言われました。
心からすまないと思いました。すでにすべて見えない塀を頼んであることを告げました。
でもこんな住宅で多頭飼いはどうでしょうって言われたのはちょっと憤慨でした。
たくさん飼っている事で迷惑をかけていないと思っていたので。
そう!それから我が家には犬11匹のほかに猫もいます。
10匹です。
ほとんどがサンルームで過ごしています。
ただ1匹、外に脱走するのがいて、これは近隣の人に迷惑をかけていて、
夏になる前、どうにかなりませんかって言われて、
脱走させない為に日夜戦っているのですが、あたしより頭がいい!
網戸は開ける!破る!はずす!
サッシは開ける!ウッドゲッキを囲んだ塀を覆う網は抜けられそうな所を
一目で見つける。とうとう毎日疲れ果てどこも窓を開けないことにしました。
家中のクーラーを4,6時中つけっぱなし、ドライをつけて
4台の空気清浄機(26帖用)と換気扇を2台つけてサンルームに扇風機で風を送り過ごす毎日。
でも相変わらず、近隣方の庭や車の上には猫よけのマットが置いてある。
やっぱりあの時家の庭に投げ入れられたウンチは、どこかの野良猫だったんだ。
家のココアはいつも下痢ウンチだし、あのときのはコロコロだったもん。
近隣の奥さんもお宅の猫がしていたのをみたわけではないけれどって言ってくれてたから
少し気が楽だけど、出てないのにと棘とげがあるマットあるのはまだ来てる猫いるんだね。
家の猫はずーっと出てませんよっていいたいなー。
さて、やっとここで別荘の話です。
いつも旅行に行くときは動物たちを連れて民族の大移動をします。でも全員車に乗せて自分の別荘に行って
フェンスに囲まれた庭でリードなしで自由に駈けずり遊ばせられたらいいなって、時々思っていました。
その思う回数が増えてきて、さらにここの生活が息苦しくなってきて、もう本気で探すしかないって思い始めました。
ちょっとここで休憩です。
続きは又明日!
